Salta al contenuto principale Skip to footer content

Messaggio di errore

Centro sportivo ex Ghigi: via libera della Giunta per la realizzazione del nuovo polo per il calcio e l’attività fisica

Dettagli

Descrizione breve
Dalla prossima settimana la consegna dell’area al concessionario
Data:

8 Novembre 2024

Tempo di lettura:

2 minuti

Parole chiave
Lavori pubbliciSport e tempo libero

Descrizione

Questa mattina, la Giunta ha approvato il progetto esecutivo presentato dal concessionario, in conformità al contratto già sottoscritto, che prevedeva la progettazione, l’esecuzione e la gestione dell'area ex Ghigi, tramite finanza di progetto. Si conclude così la prima fase, dedicata alla progettazione, mentre a partire da dicembre 2024, prenderà avvio la seconda fase, con l’esecuzione vera e propria dei lavori.

A partire dalla prossima settimana, l’area ex Ghigi sarà consegnata al concessionario per dare il via ai lavori di recupero di questo importante spazio sportivo che, una volta completato, diventerà un polo di eccellenza dedicato al calcio e all’attività fisica.

L’intervento prevede la rifunzionalizzazione e il completamento del centro sportivo nell’area ex Ghigi, finora solo parzialmente costruito e attualmente in stato di abbandono. Il progetto include la riqualificazione delle strutture esistenti, come uffici e spogliatoi, puntando su sostenibilità ed efficienza energetica, e la costruzione di nuove infrastrutture che faranno del centro un impianto polivalente all’avanguardia.

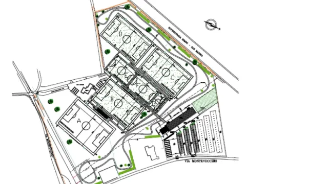
L’obiettivo è rigenerare l’intera area, trasformandola in uno spazio di aggregazione e socializzazione per la comunità, concepito per rispondere alle attuali esigenze sportive e ricreative. In particolare, il progetto prevede la costruzione di otto campi da calcio, di cui quattro da 11 giocatori (due in erba naturale e due sintetica); due campi da 7 giocatori in sintetico; e due campi da calcetto (5 giocatori), di cui uno polivalente, da coprire con pallone nei mesi invernali. Oltre a questo il progetto prevede tre campi da padel e una pista ciclopedonale. Sarà realizzata una tribuna per il pubblico dei due campi principali e sarà mantenuto, con possibile ampliamento, il parcheggio esistente, dotato di impianto fotovoltaico. L’area sarà completata con camminamenti e spazi verdi.

Grazie alla rilevanza del progetto e al suo impatto strategico, è stato approvato un finanziamento di 1,4 milioni di euro nell’ambito del PNRR (Missione 5, Sport e Inclusione Sociale), per un investimento complessivo di circa 6 milioni tramite partenariato pubblico-privato. La conclusione dei lavori è prevista entro un anno, ovvero a dicembre 2025, dopodiché inizierà la gestione da parte del concessionario per 25 anni.

Link utili

  1. Mappa dei lavori pubblici

Galleria immagini

  • Planimetria ex area Ghigi

Novità correlate

campo di calcio
Notizia 19 Giugno 2024

Centro sportivo area ex Ghigi: approvato il progetto definitivo

Via libera al progetto definitivo per il completamento e la rifunzionalizzazione
campo da calcio
Notizia 29 Settembre 2023

Centro sportivo ex area Ghigi

Pervenuta un’offerta per l’affidamento delle attività di progettazione esecutiva, realizzazione e gestione dell’impianto polivalente.
cittadella_ghigi_thumb.jpg
Notizia 25 Marzo 2019

Centro sportivo all’ex area Ghigi, parere favorevole in III Commissione alla proposta di accordo transitivo tra Comune e la curatela della fallita Football Village

La III commissione ha espresso parere favorevole alla proposta per l’atto di transizione tra Comune di Rimini e la curatela fallimentare del Football Village che consentirà all’Amministrazione comunale di tornare a disporre delle aree dell’ex area Ghig...
planimetria_0.jpg
Notizia 2 Gennaio 2020

Centro sportivo all’ex area Ghigi: approvato il progetto di fattibilità per il completamento dei lavori e la gestione. Entro fine gennaio la pubblicazione del bando

Si apre una nuova pagina per il centro sportivo dedicato al calcio nell’ex Area Ghigi. La Giunta Comunale ha infatti approvato il progetto di fattibilità per il completamento e la gestione del centro che sarebbe dovuto sorgere su impegno di un privato,...
Ultimo aggiornamento:

08/11/2024, 12:53